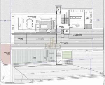
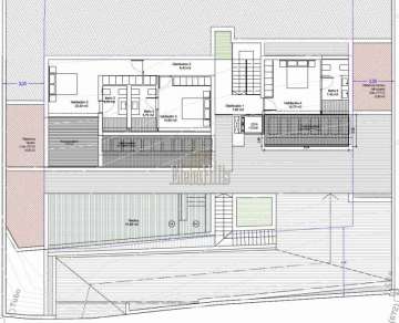
Modern luxury villa under construction, overlooking the sea and the mountains, nestled in the elite acres of Altea Hills (Altea, Alicante) – a quiet gated community with 24-hours security, beautifully landscaped grounds and its own tennis club. The villa is built and designed under the custom project of a young creative Spanish architect. The construction incorporates all the best modern technologies and features optimal space solution, panoramic glazing, air-conditioning and ventilation systems, economical floor heating, high-quality finishing materials, unusual architectural and design interpretations. At the moment, the basic three level structure of the house has already been constructed. At the bottom level there will be: a garage for two cars, a technical room and the elevator. The next floor comprises: entrance hall with staircase and elevator, a very spacious living room of 60sqm with a open plan gourmet kitchen next to a dining area, a guest toilet and a 20sqm master bedroom with a modern bathroom on suite. On the terrace there will be constructed a 47,5 m2 infinity swimming pool with panoramic views over the sea and the Altea Bay. Next to the pool zone there will be a south-west oriented terrace of 175sqm in total where enjoy the sunsets of Costa Blanca. The top floor will comprise a three large bedrooms with in suite bathroom and built in wardrobes. All the bedrooms have access to an open terrace and all of them enjoy panoramic views over the sea, mountains and Benidorm Skyline. The yacht club Campomanes with its beaches, bars and restaurants and the Don Cayo golf course are in the immediate vicinity The experienced team of builders and designers is creating a great place for living and you will become part of the exclusive community of Altea Hills. Do not miss this unique opportunity; contact us for further details.
More Features
- Lift
- Garage
- Age : 2020
- Garden
- Swimming pool
- Video intercom
- Living room desc. : 60
- Hall desc. : 7
- Desc. Rooms : 4
- Bathrooms desc. : 5
- Heating : Si, sin detallar
- Water : Si, sin detallar
- Air conditioning
- Conservation : Nuevo o seminuevo
- Supplies registered
- Wardrobes
- Terrace
- 4 Rooms
- 5 Bathrooms
- 271 m² useful surface
- 305 m² Build Surface
- Lift
- Garage
Other similar properties that may be of interest
Modern villa for sale in Sierra de Alt...
Altea Hills - Altea (Alicante)
4Rooms, 4Bathrooms
350 m² useful surface, 350 m² Build Surface
398.000 € 425.000 €
Newly renovated townhouse with guest a...
Altea Hills - Altea (Alicante)
4Rooms, 4Bathrooms
190 m² useful surface, 250 m² Build Surface, 300 m² plot
255.000 € 315.000 €
Elegant mediterranean style villa, sit...
Altea Hills - Altea (Alicante)
4Rooms, 2Bathrooms
150 m² useful surface, 250 m² Build Surface, 250 m² plot
319.000 € 398.000 €
Property Search
Property recommended
The Puerta del Sol Bungalows for sale in Calpe (Alicante)
Calpe - Calp (Alicante)
3Rooms, 2Bathrooms
102 m² useful surface, 225 m² Build Surface
179.000 € 195.000 €
New modern style luxury sea view villa for sale in Finestrat, Benidorm (Alicante)
Finestrat (Alicante)
4Rooms, 4Bathrooms
Garage, 389 m² useful surface, 894 m² Build Surface
2.300.000 €




















